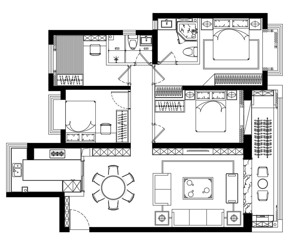
以低饱和的深灰、棕木色为主,搭配哑光石材质感的地面,没有多余花纹;局部用金属线条、玻璃酒柜、皮质沙发提升档次,既保持简约的干净,又避免单调,所有柜体电视墙、酒柜都是 无把手嵌入式,线条利落,吊顶是平顶内嵌射灯线性灯,没有复杂造型,视觉上很清爽。



家具选了简约轮廓的款式比如弧形餐椅、方正沙发,装饰只保留少量艺术摆件和绿植,少而精的思路很贴合简约风的 “去繁从简”。

把收纳电视墙柜、酒柜藏在简约造型里,既满足实用需求,又让空间保持整洁 —— 这也是现代简约风 “功能与美观统一” 的核心。

餐厅 丨 THE CORRIDOR
延续了深灰棕木的主色调,搭配大理石纹理餐边柜背板和黑白棋盘格餐桌,简约中带着高级感;餐椅用黑棕拼色皮质,质感和舒适度都在线。


餐边柜是收纳展示二合一:上半部分是带氛围灯的玻璃柜放酒具藏品,下半部分是封闭柜藏杂物,中间还嵌入了饮水机,实用性拉满。

餐边柜的内嵌灯带、墙面的装饰摆件,还有绿植点缀,让硬朗的空间多了柔和感,整体既显档次又不缺生活气。

主卧 丨 MASTER BEDROOM
主卧以温润的基调延伸空间的整体一致性。纯粹的木色,以其天然的质感让空间充满生机与活力,让居者在其中找到了内心的宁静与归宿感。


置身窗前沐浴,沉浸于一片静谧的、无扰的安宁之中,在城市的喧嚣中寻觅到一份隐居般恬淡,这份宁静渗透进了生活的每一个细节。

床头背景墙加了氛围灯带,睡前能营造柔和光线。

次卧丨 SECOND BEDROOM
以浅米色暖棕色做撞色墙面,搭配深灰皮质床头和浅灰床品,色调柔和不跳脱;木色地板增加温馨感,整体氛围很适合休息。


儿童房 丨CHILDREN SROOM
儿童房是温柔治愈的现代童趣风设计,兼顾了可爱感与实用性。

以低饱和的淡粉色和浅米色为主,温柔不刺眼,很契合儿童房的温馨感;粉色元素床头背景、置物架、书桌统一又有层次,不会显得杂乱。

墙面加悬浮置物架,把小空间的每处都利用起来。

软装加入可爱的羊驼玩偶,氛围轻松治愈也延续了全屋的简约质感。

玄关 丨 ENTRANCE HALL
玄关的浅色柜体搭配另一侧的木色柜体,色彩和谐又富有层次感。嵌入式的灯光设计,柔和地照亮展示区域,凸显精致摆件。地面洁白无瑕与整体简洁的线条相呼应,营造出宽敞、明亮且温馨的入户体验。

卫生间丨BATHROOM
卫浴空间,简白材质与玻璃镜面定义了空间轮廓,被柔和的光线拥抱后,营造出舒心的氛围。
